JSW/D Architects




Private Homes
Multi-Family Housing
Institutional
Current Projects

 



Current Projects

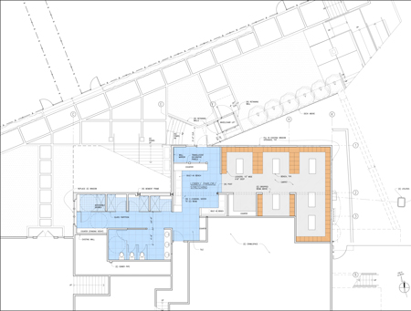
New Women's Locker Room, Berkeley Tennis Club, Berkeley, CA

Berkeley Tennis Club

 

 
Previous
Main Firm Projects Publications Contact news